Noch eine Wohnung frei! Jetzt Termin zum Kennenlernen anfragen.

Wohnraum bei wandelbar

Auf unserem Grundstück werden ein Mehrfamilienhaus, und sechs freistehende Einzelhäuser stehen. Die Einzelhäuser sind in mindestens zwei und höchstens vier Wohneinheiten aufgeteilt. Es entstehen also sowohl klassische Doppelhaushälften, als auch Wohnungen in Einzelhäusern in verschiedenen Größen. Zusätzlich wird es neun Wohnungen im Mehrfamilienhaus geben. Wir hoffen, für Dich ist etwas dabei. Wenn Du Fragen oder Interesse hast, kontaktiere uns einfach.

Haustypen

Die Einzelhäuser wird es als große (Typ I) und kleine (Typ II) Variante geben. Die kleinen Häuser werden mit zwei Vollgeschossen errichtet. Bei den großen Häusern gibt es zusätzlich ein Dachgeschoss. Im Mehrfamilienhaus entstehen 9 Wohnungen, ein Gemeinschaftsraum und ein Gemeinschaftskeller.

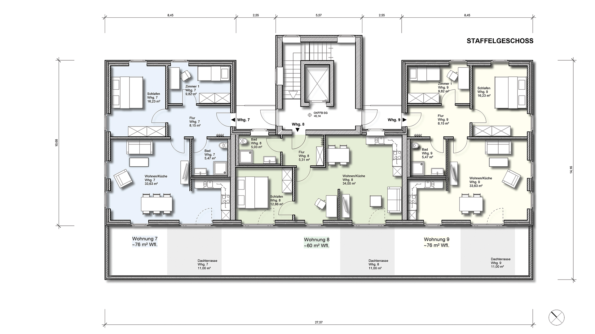
Mehrfamilienhaus

Einzelhaus Typ I ("groß")

Einzelhaus Typ II ("klein")

Lageplan

Wohnungen in Einzelhäusern

Die angegeben Preise beinhalten alle Kosten für Gemeinschaftsflächen, wie z.B. Grundstück, Gemeinschaftsraum oder Werkstatt.

Kleiner Hinweis: Auf manchen Mobiltelefonen werden die Grundrisse und weitere Informationen nicht angezeigt. In dem Fall bitte entweder das Mobiltelefon drehen oder die Seite an einem PC oder Laptop öffnen.

Wohneinheit Lage Wohnfläche Geschätzte Kosten Status Grundriss
WE12 Haus 1 Ost unten ca. 73 qm -
Vergeben
WE 13 Haus 1 Ost oben ca. 97 qm -
Vergeben
WE 14 Haus 2 West unten ca. 73 qm -
Vergeben
WE 15 Haus 2 West oben ca. 70 qm ca. 390.000 €
Verfügbar
WE 16 Haus 2 Ost unten ca. 73 qm -
Vergeben
WE 17 Haus 2 Ost oben ca. 70 qm -
Vergeben
WE 20 Haus 4 West unten ca. 73 qm -
Vergeben
WE 21 Haus 4 West oben ca. 97 qm ca. 500.000 €
Verfügbar

Info zu KFW-Förderung: Wir arbeiten daran, dass unsere Gebäude nach dem Standard "Klimafreundliches Wohngebäude" zertifiziert werden. Damit ergeben sich sehr gute Förderkonditionen, sowohl für Familien, als auch für Alle.

Doppelhaushälften

Die angegeben Preise beinhalten alle Kosten für Gemeinschaftsflächen, wie z.B. Grundstück, Gemeinschaftsraum oder Werkstatt.

Kleiner Hinweis: Auf manchen Mobiltelefonen werden die Grundrisse und weitere Informationen nicht angezeigt. In dem Fall bitte entweder das Mobiltelefon drehen oder die Seite an einem PC oder Laptop öffnen.

Wohneinheit Lage Wohnfläche Geschätzte Kosten Status Grundriss
WE 11 Haus 1 West ca. 171 qm -
Vergeben
WE 18 Haus 3 West ca. 139 qm -
Vergeben
WE 19 Haus 3 Ost ca. 139 qm -
Vergeben
WE 22 Haus 4 Ost ca. 171 qm -
Vergeben
WE 23 Haus 5 West ca. 139 qm -
Vergeben
WE 24 Haus 5 Ost ca. 139 qm -
Vergeben
WE 25 Haus 6 West ca. 139 qm -
Vergeben
WE 26 Haus 6 Ost ca. 139 qm -
Vergeben

Info zu KFW-Förderung: Wir arbeiten daran, dass unsere Gebäude nach dem Standard "Klimafreundliches Wohngebäude" zertifiziert werden. Damit ergeben sich sehr gute Förderkonditionen, sowohl für Familien, als auch für Alle.

Wohnungen im Mehrfamilienhaus

Die angegeben Preise beinhalten alle Kosten für Gemeinschaftsflächen, wie z.B. Grundstück, Gemeinschaftsraum oder Werkstatt.

Kleiner Hinweis: Auf manchen Mobiltelefonen werden die Grundrisse und weitere Informationen nicht angezeigt. In dem Fall bitte entweder das Mobiltelefon drehen oder die Seite an einem PC oder Laptop öffnen.

Wohneinheit Lage Wohnfläche Geschätzte Kosten Status Grundriss
WE 1 MFH EG ca. 100 qm -
Vergeben
WE 2 MFH EG ca. 95 qm -
Vergeben
WE 3 MFH EG ca. 48 qm -
Vergeben
WE 4 MFH OG ca. 100 qm ca. 590.000 €
Verfügbar
WE 56 MFH OG ca. 95 qm -
Vergeben
WE 7 MFH OG ca. 100 qm -
Vergeben
WE 8 MFH SG ca. 76 qm -
Vergeben
WE 9 MFH SG ca. 60 qm -
Vergeben
WE 10 MFH SG ca. 76 qm -
Vergeben
Gem.-Raum MFH EG ca. 63 qm inklusive
-
Gem.-Keller MFH Keller ca. 350 qm inklusive
-

Info zu KFW-Förderung: Wir arbeiten daran, dass unsere Gebäude nach dem Standard "Klimafreundliches Wohngebäude" zertifiziert werden. Damit ergeben sich sehr gute Förderkonditionen, sowohl für Familien, als auch für Alle.

Du bist interessiert? Lerne uns kennen!

Nach Deiner Anfrage melden wir uns bei dir zurück und laden Dich, wenn Du möchtest, zu einem unverbindlichen Kennenlernen ein.

Bitte addieren Sie 8 und 5.